Business thrives here.
So do you.

Welcome to
One Bethany North

Located at the heart of Allen, Texas, One Bethany North offers prime visibility and immediate access 
to a thriving business community. As the third phase of the renowned One Bethany office park, this development blends modern design with fully delivered spaces and premium amenities—positioning businesses for success from day one.

9
Stories
225,000
Rentable square feet
4:1,000
Covered parking with covered walkway
14′
Typical floor to floor heights with 5″ slab
Private Terrace
Available on top floor
Easy Access
Close proximity to Central Expressway

The Amenities

More than a collection of features, the amenities 
at One Bethany North are intentionally designed to enhance every aspect of the workday.

Expansive Lawn & Outdoor Seating
Tenant Conference Facility
Fitness Center:

– Private locker rooms
– Top of the line equipment
– Outdoor workout area

Golf Simulator
Tenant Lounge
On-Site Property Management and Security

Amenities Plan

1 Parking Garage
2 Pickleball Court
3 Fitness Lawn
4 Fitness Center
5 Office
6 Lobby
7 Lounge/Conference
8 Cafe
9 Visitor Drop Off

The Neighborhood

With a pro-business mindset, Allen provides the infrastructure and community support necessary for lasting success. One Bethany North is nestled within this vibrant community, offering businesses easy access to a range of local attractions.

Map Legend
Dining
Retail
Hotels
Fitness
Services
Entertainment
Travel Distances
Sam Rayburn Tollway
4.5 miles
Central Expressway
0.2 Miles
Mckinney Airport
9 miles
Dallas Love Field
25 Miles
DFW Airport
30 Miles
Addison Airport
16 Miles
Uptown Dallas
20 miles
Frisco
13 Miles
Legacy
10 Miles
Richardson
10 Miles
Plano
6 Miles

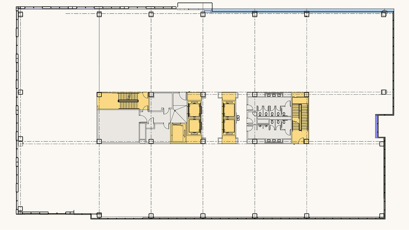
Typical Floor Plan

keyboard_arrow_up